Tamora es una privada con amenidades ubicada en Conkal, una de las zonas de mayor
auge inmobiliario en todo el norte de Mérida.
Tamora cuenta con una gran cantidad de amenidades sociales y deportivas que te
permitirán vivir en un entorno lleno de relajación y esparcimiento
Su ubicación te brinda una calidad de vida única, segura y rodeado de naturaleza pero
con conexiones rápidas que en 10 minutos te permite disfrutar de todos los servicios
que la zona de Altabrisa te brinda
AMENIDADES DE LA PRIVADA
– Vigilancia 24/7
– Servicios subterraneos
– Casa club con salón de eventos para 80 personas
– Piscina
– Canal de nado
– Gimnasio climatizado
– Cancha de pádel
– Pista de jogging
– Parque infantil
– Parque recreativo
– Áreas verdes
– Cancha de fútbol rápido
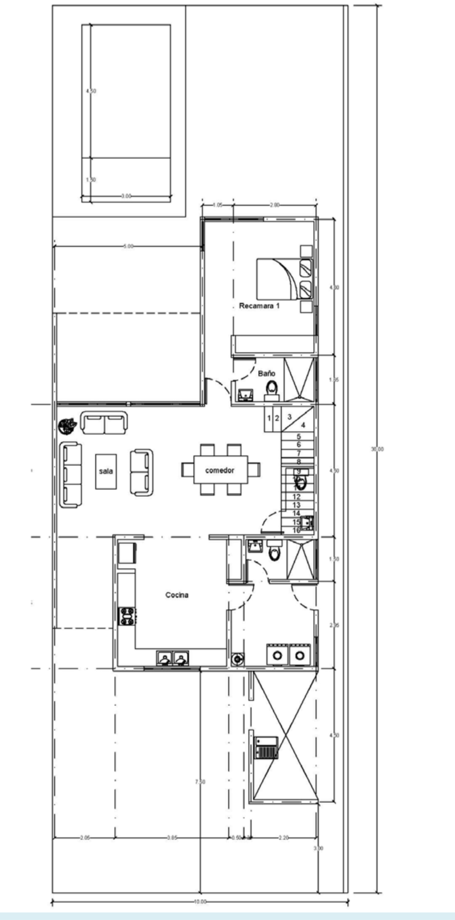
Distribución:
Planta baja:
-Cochera para 2 autos
-Sala – comedor
-Medio baño de visitas
-Cocina amplia vestida
-Recamara con vista a la piscina con baño completo
-Cuarto de servicio con baño completo
-Área de tendido
-Terraza trasera con vista a la piscina
-Piscina de 3m x 5m
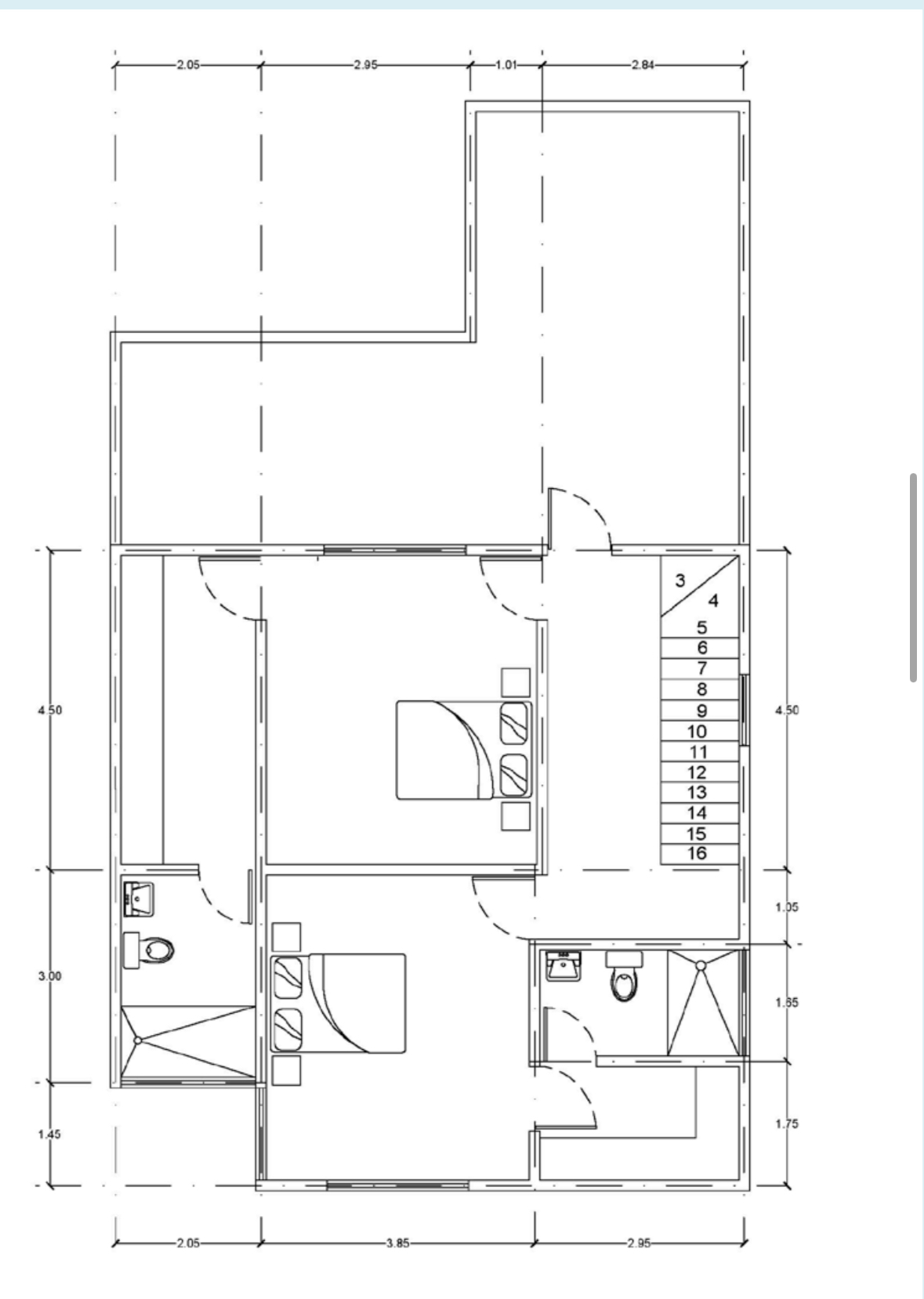
Planta alta:
-Recamara principal con closet vestidor, baño completo y balcón.
-Recamara secundaria con closet vestidor y baño completo
-Preparación para una 4ta recámara
Disponible:
**sin cochera: $3,900,000
CUOTA MANTENIMIENTO: $1,413.36
Entrega lnmediata
FORMA DE PAGO:
Apartado: $10,000 vigente 8 días
Enganche: 10%
Aceptamos Crédito Bancario y Recurso Propio.







